Lien vers la visite virtuelle Rdc : https://tinyurl.com/s9edes36
Lien vers la visite virtuelle étage : https://tinyurl.com/mbvuf7th
IMMEUBLE DE RAPPORT – 2 LOGEMENTS INDÉPENDANTS – IDÉAL HABITAT KANGOUROU – MOUSCRON
À deux pas du centre de Mouscron, découvrez ce bien rare, à la configuration parfaite pour vivre ensemble… tout en conservant son autonomie.
Cette maison a bénéficié d’une rénovation complète et soignée, avec des matériaux de qualité et des aménagements actuels.
Elle se compose de deux unités séparées :
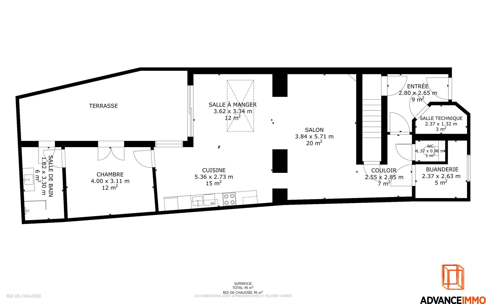
Rez-de-chaussée (91 m² selon CPEB)
Entrée privative, cuisine équipée ouverte sur un séjour lumineux, 1 chambre, salle de bain, buanderie, local technique et terrasse privée à l’abri des regards.
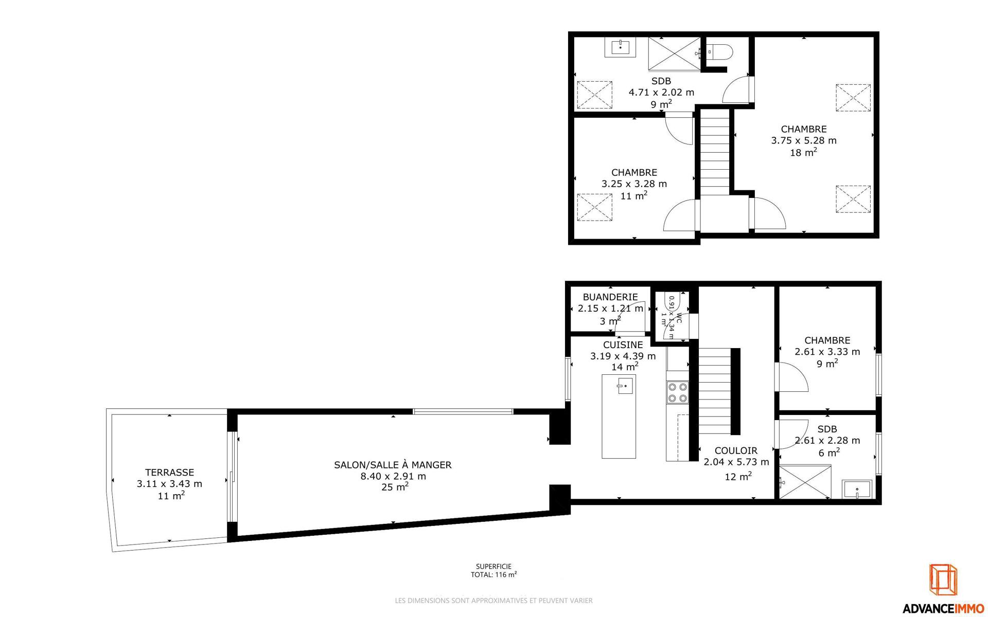
Duplex à l’étage (128 m² selon CPEB)
Entrée privative, 3 chambres, séjour traversant avec cuisine ouverte moderne, 2 salles d’eau, buanderie et terrasse.
Les +
✔ Parfait pour un projet d’habitat kangourou (parents/enfants, aidants, famille élargie)
✔ Idéal pour investisseur : deux unités prêtes à louer
✔ Techniques, isolation, finitions : tout est à jour
✅ Deux logements bien pensés, confortables et indépendants
✅ Aucun aménagement à prévoir
✅ Quartier pratique et recherché : écoles, commerces, axes principaux à proximité
ℹ️ Les propriétaires se réservent le droit d’apprécier les offres.
Superficies données à titre indicatif. Informations non contractuelles.
À visiter sans tarder : +32 472 677 674